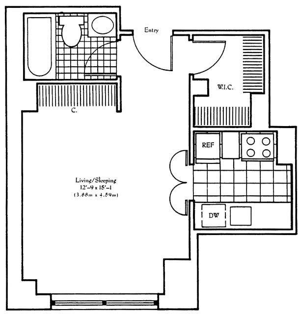
106 Central Park South , 20-O
Floor Plan