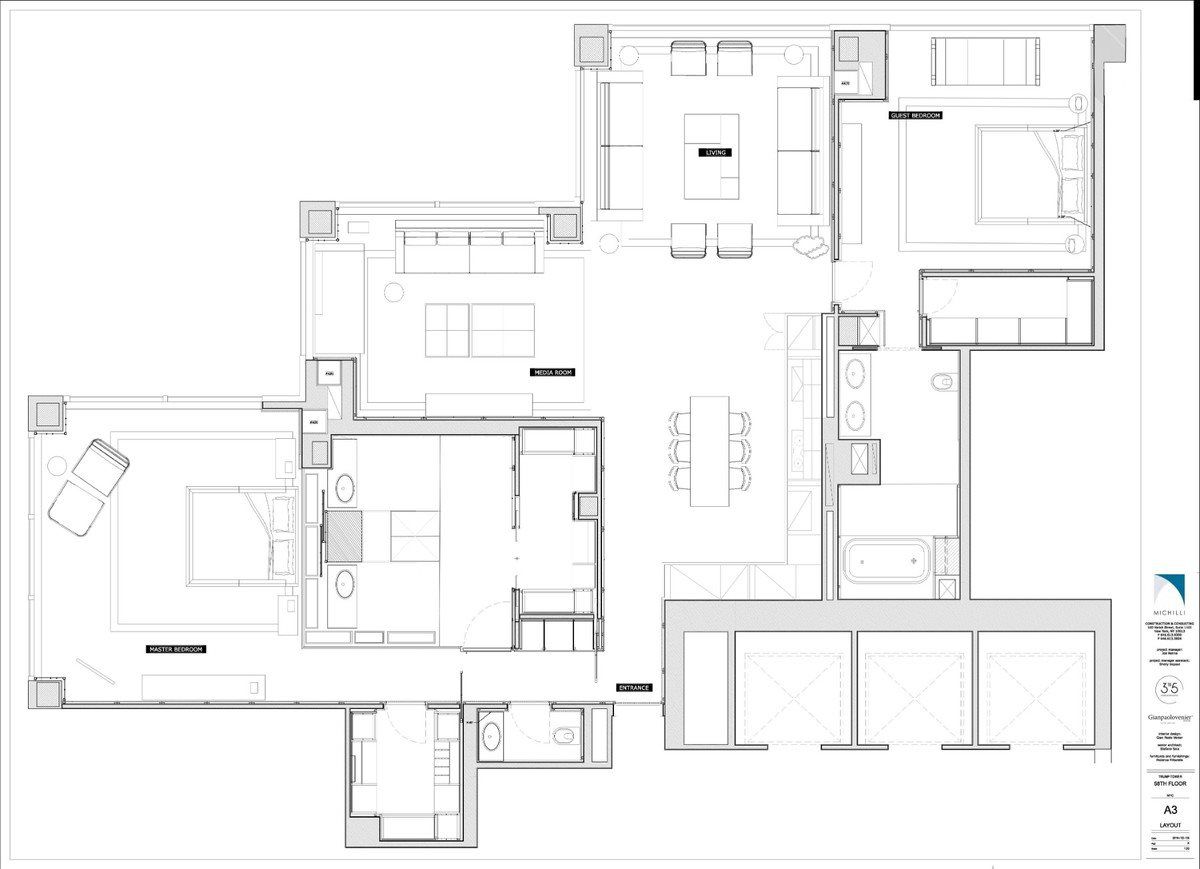
721 fifth Ave, Apt. 34-g
Floor Plan