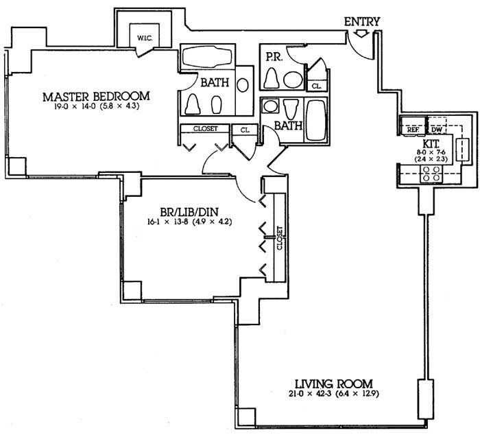
721 fifth Ave, Apt. 55-A
Floor Plan