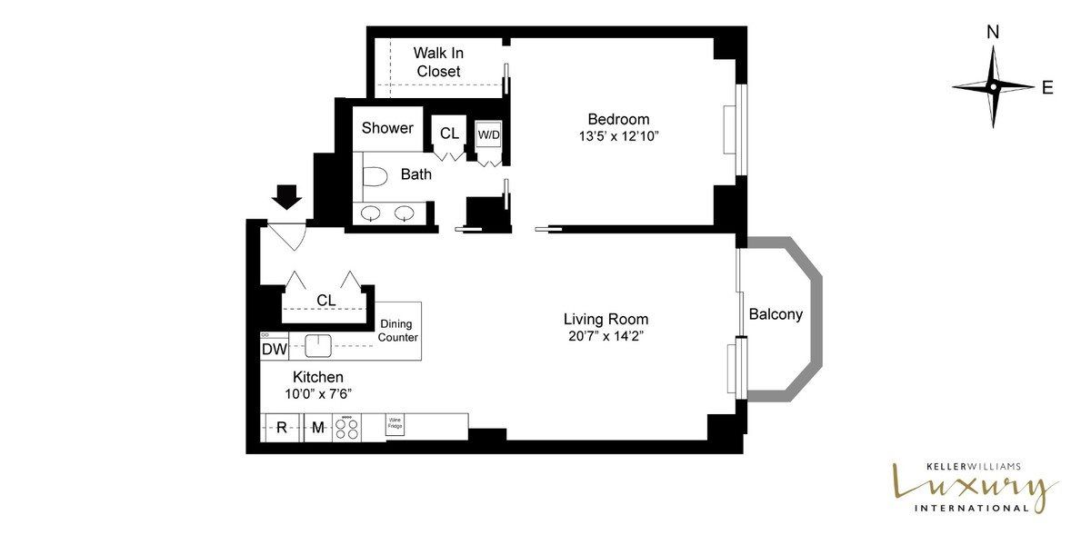
108 fifth Ave, Apt. 16-C
floor Plan