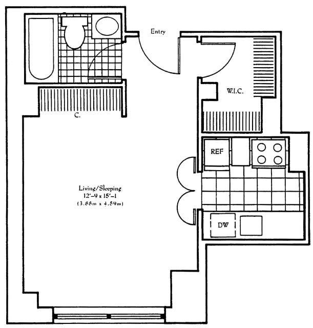
106 Central Park South, 12-O
Floor Plan