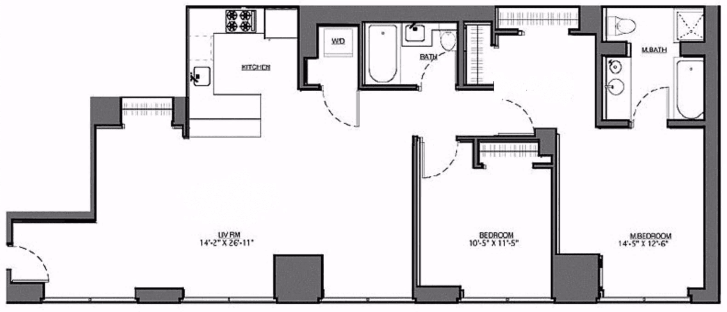
130 West 19th Street, 12-D
Floor Plan