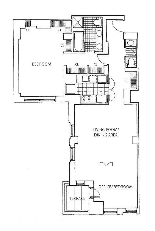
106 Central Park South, 22-J
Floor Plan