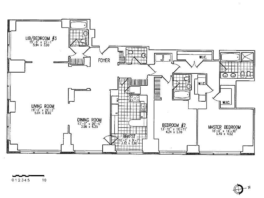
845 United Nations Plaza, 58-B
Floor Plan