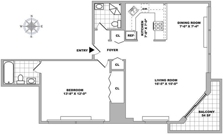
359 East 68th Street, 5-B
Floor Plan