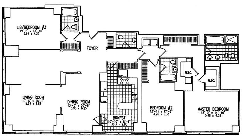
845 United Nations Plaza, 80-B
Floor Plan