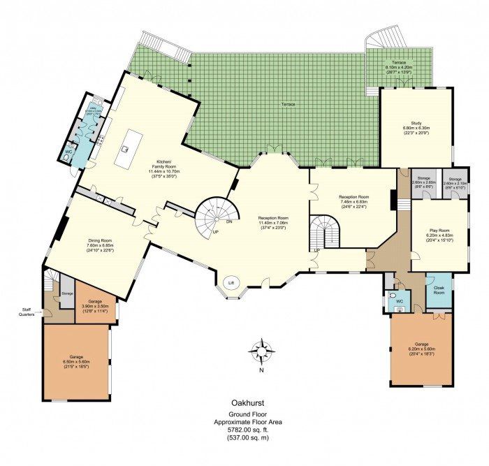
Oakhurst, Totterage Common, N20, London
Floor Plan