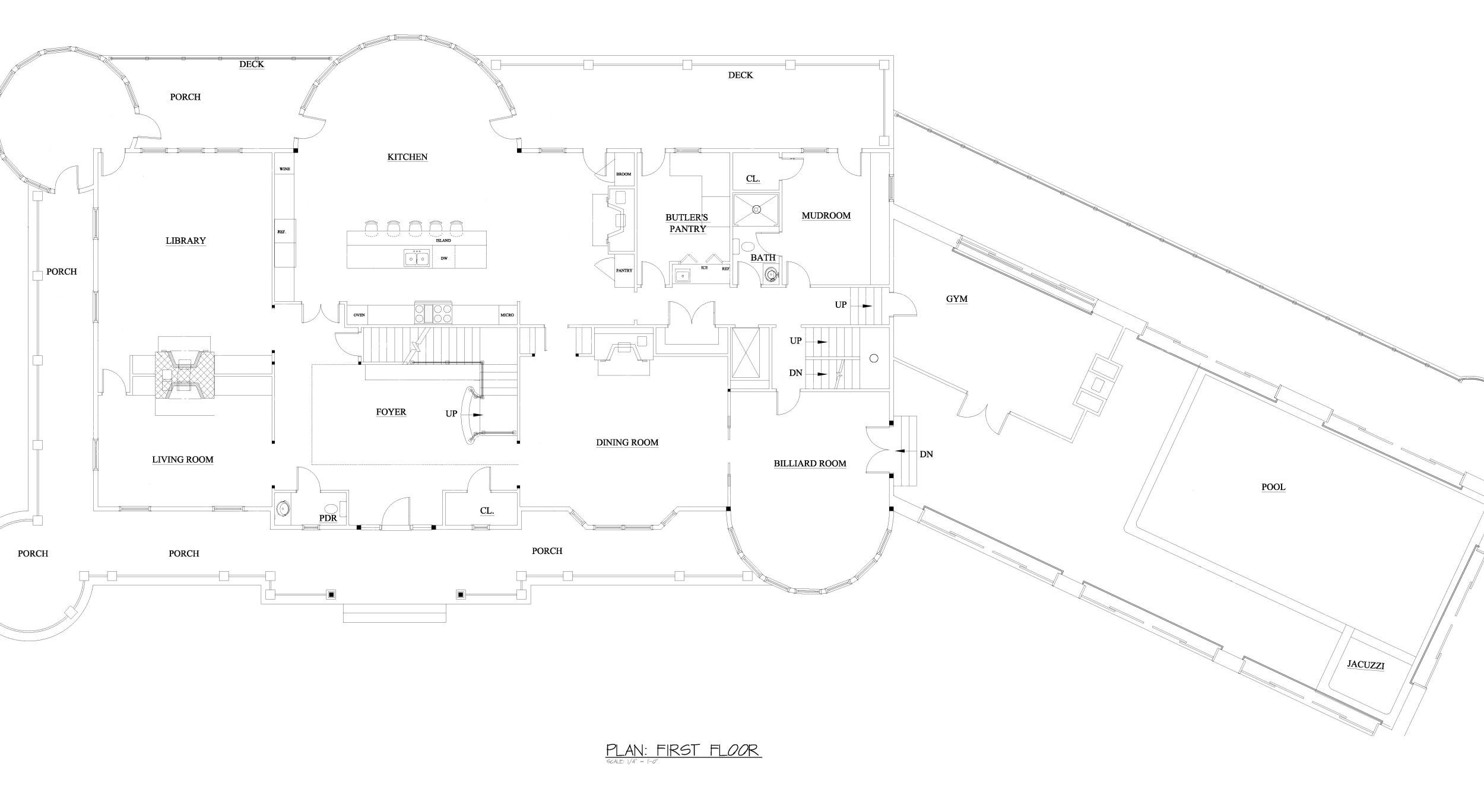
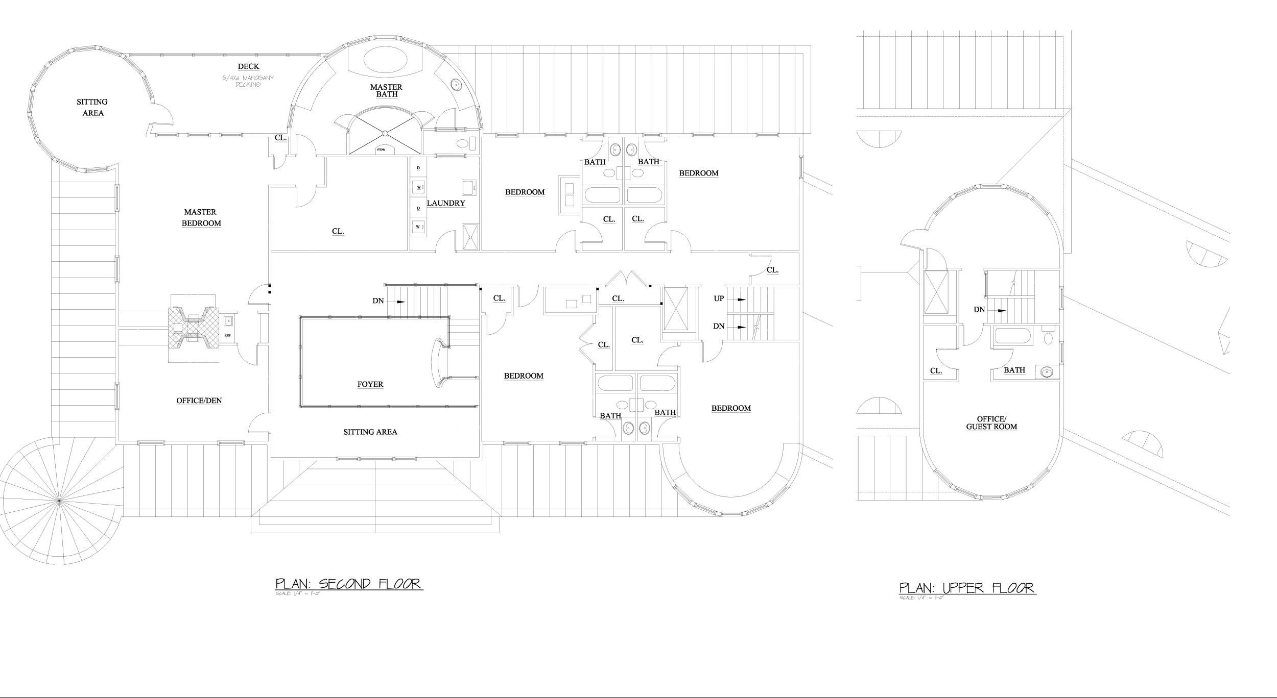
194 East Lake Road, Tuxedo
Floor Plan